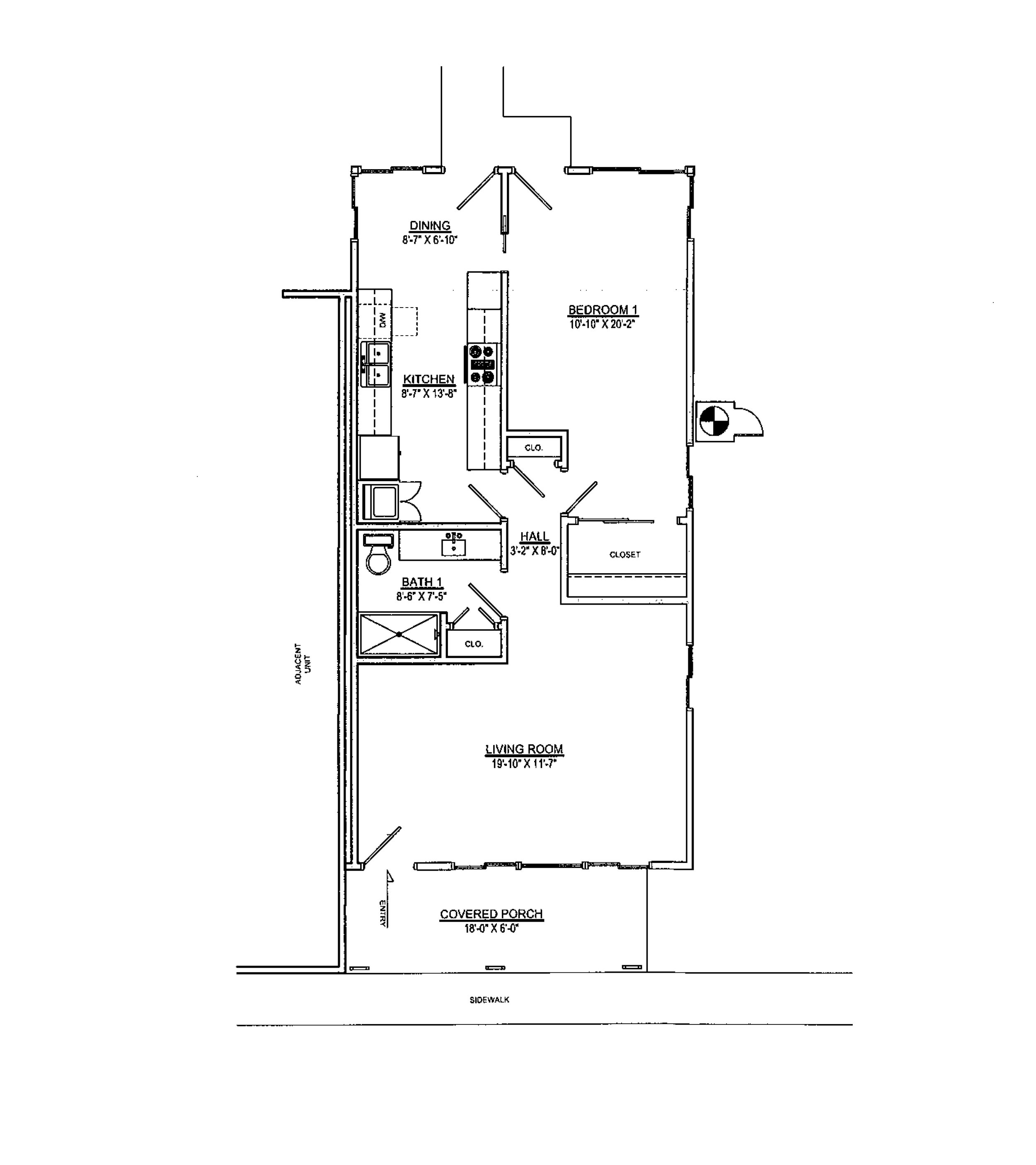
D97

Living Space: 771

Patio: N/A

Porch: 106

Total Sq. ft: 879

Bedrooms: 1

Bathrooms: 1

Pricing

Amortized Ent. Fee = $288,446

75% Refundable Ent. Fee = $504,780

Single's Monthly Fee = $2,370.48

Couple's Monthly Fee = $3,030.48

All monthly fees include the following:

  • Water

  • Trash

  • 21 meals per month/per person

  • Access to Wellness Center and Classes

  • Access to other common areas, such as Art Studio, Swimming Pool, Wood Shop, etc.

D97 may be small, just one bedroom and one bathroom, but it offers a warm and inviting place to call home. The large bedroom provides plenty of room to relax and unwind, while the kitchen features a cozy breakfast nook.  Quaint, comfortable, and easy to love, this cottage is a wonderful opportunity to enjoy simple, cottage-style living at MVG. 

If interested, please contact
Noelle Gonzales:
ngonzales@mvgh.org

Previous
Previous

A13